Hydrant system with D19 semi-rigid hose, 30 m, glass-panelled door, nozzle equiv. 6, red

    Cat. No.: svv 104/C

    Manufacturer: Pavliš a Hartmann

    Fire hydrant system with semi-rigid hose is a very effective fire-fighting facility with an uninterrupted supply of water immediately.

    Do you have a question about this product? We will be happy to advise you on phone +420 466 985 890 or e-mail prodej@phhp.cz.

    Hydrant system with D19 semi-rigid hose, 30 m, glass-panelled door, nozzle equiv. 6, red

    Approved to ČSN 73 0873 and ČSN EN 671-1

    Fire hydrant system with semi-rigid hose is a very effective fire-fighting facility with an uninterrupted supply of water  immediately. The design of the system allows quick operation by a single person.

    1. Hydrant cabinet – made of 1 mm steel sheet. Pressurized water supply, brought through the centre of the reel, enabling immediate use of the system. Powder coated surface treatment designed for indoor environment (outdoor design possible by agreement with the manufacturer). Solid or glass-panelled door.
    2. 19 or 25 mm PH – stabil D semi-rigid hose.
    3. Nickel-plated brass ball valve.
    4. D 25 spray fire nozzle consisting of a polypropylene body and revolving head. The revolving head enables the user to set a full or spray stream with an adjustable spraying angle within the range 0 – 110° and to shut off the nozzle.
    5. Connection hose used to connect the system to water main.

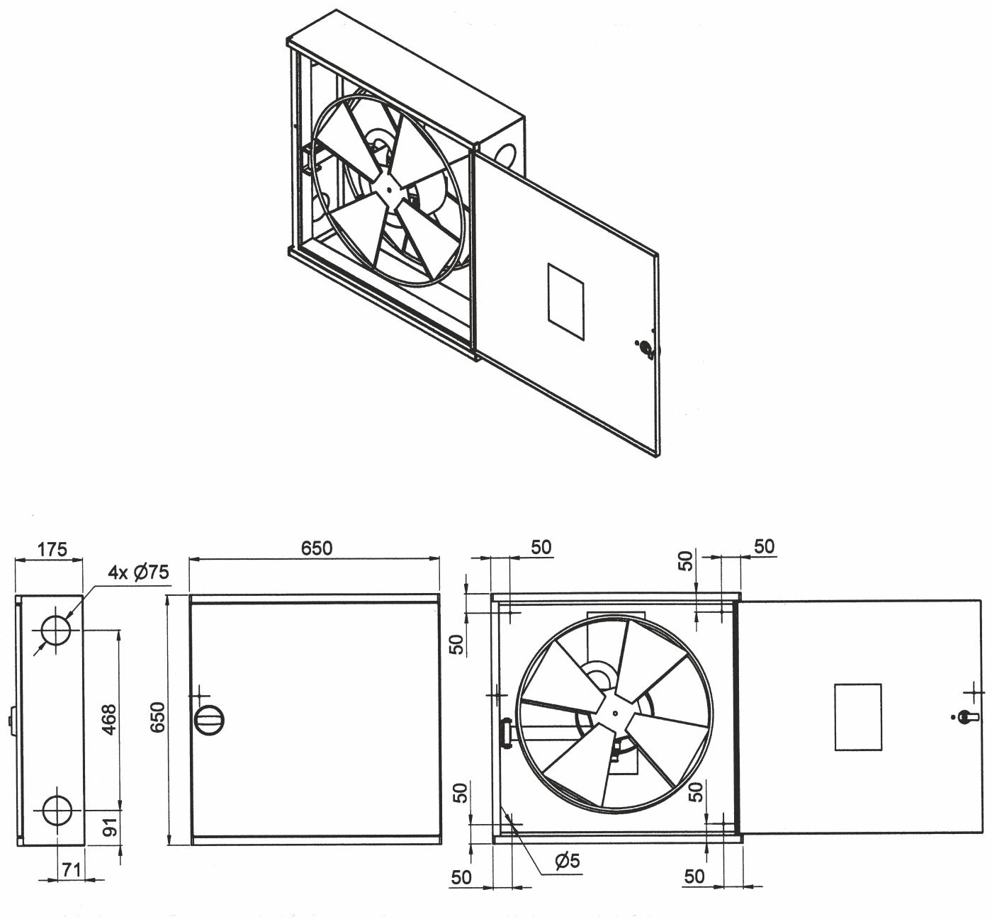
    Dimensions

    width x height x depth

    Hydrant system with D19 mm semi-rigid hose

    • 650 x 650 x 175 mm – 20 or 30 m hose can be used.
    • 710 x 710 x 135 mm – only 20 m hose can be used. Only fire nozzle with 6 mm equiv. diam. is used – flow rate Q < 1.1 L/sec.

     

    Inspection of hydrant system is to be undertaken by a trained person in accordance with applicable standards and regulations.

    Hydrant systems with D19 

    Dimensions Door Hose Fire nozzle Cat No.
    650 x 650 x 175 solid 20m of D19 equiv. 6 svv 101
    650 x 650 x 175 solid 30m of D19 equiv. 6 svv 102
    710 x 710 x 135 solid 20m of D19 equiv. 6 svv 110
    650 x 650 x 175 glass-panelled 20m of D19 equiv. 6 svv 103
    650 x 650 x 175 glass-panelled 30m of D19 equiv. 6 svv 104
    710 x 710 x 135 glass-panelled 20m of D19 equiv. 6 svv 111

    System installation

    When selecting a specific type of equipment, systems with at least 25 mm hose (internal diameter) are to be installed especially in the following areas:

    • Fire sections in production facilities (according to ČSN 73 0804) and warehouses (according to ČSN 73 0845).
    • Fire sections (buildings) where the linear speed of fire propagation is v1 > 1.2 m/min; values of v1 from Table B.1 in Appendix B can be used without additional certificates.

    In buildings or their parts designed as:

    1. Indoor meeting areas (according to ČSN 73 0831).
    2. Accommodation buildings of OB 4 group (according to ČSN 73 0833).
    3. Retail outlets and distribution depots.
    4. Multiple garages.
    5. Exhibition grounds.
    6. Film, TV and radio studios.
    7. Stages, backstage areas, scene-docks.
    8. Fire sections on underground floors with more than 10 persons present (ČSN 73 0818).
    9. Fire sections with high fire load (p > 120 kg/m2).

    In other relevant cases, it is sufficient to install hose systems using 19 mm (nominal internal diameter) hose at least.

    The hose reel systems are to be installed at a height betw. 1.1 m and 1.3 m above the floor (measured to the centre of equipment). Their position should allow easy reach and it should be possible to open the door up to 180°. For the installation it is necessary to provide sufficient water supply so that a minimum overpressure of 0.2 MPa is guaranteed in the least favourable place.

    Application

    After opening the cabinet and checking that the nozzle is shut off, open the ball valve on the inlet (the system fills with water). Unwind the required length of hose from the reel up to the place of fire and turn the head of the nozzle to adjust the required shape of water stream.

    Downloads

    HS 710x7100x245pdf214.21 KB

    HS 710x7100x135pdf278.64 KB

    HS 650x650x285pdf183.72 KB

    HS 650x650x210pdf244.70 KB

    HS 650x650x175pdf203.96 KB

    Parameters
    • Hose - diameter: D19
    • Hose length: 30 m
    • Nozzle: eq. 6
    • Dimension: 650x650x175 mm
    • The door: glazed
    • Colour: red
    Product in categories

    Need a wholesale quote? Contact us here.

    Choose from similar products

    Czech manufacturer

    Express delivery times

    Warranty, post-warranty service

    Professional consulting

    Pavliš a Hartmann, spol. s r.o.

    V Telčicích 249 (map)
    533 12 Chvaletice
    Czech Republic

    +420 466 985 890

    Your browser (Internet Explorer) is out of date.

    It no longer releases updates for Windows. Download one of these up-to-date, free and excellent browsers: